Nucleus: lateinisch „Kern“
Der Neubau des Schulungs- und Conference Center bildet eben diesen Nucleus einer abschnittsweisen Entwicklung des ehemaligen NCR-Grundstücks zwischen der Dr.-Dürrwanger-Straße und dem Dayton-Ring (B17).
Vor dem Hintergrund der Realisierung des Universitätsklinikums Augsburg wurde von der Schulze Architekten GmbH eine städtebauliche Konzeptstudie zur Revitalisierung des ehemals durch das Technologieunternehmen NCR genutzten Geländes erstellt. Diese Studie mündete unter Einbeziehung des „Entwicklungskonzept Stadtumbau Kriegshaber“ in eine das Gesamtareal umfassende Masterplanung, welche eine phasenweise und modulare Umsetzung der Planungen und städtebaulichen Ziele gewährleistet.
Basis für den Neubau des SCC ist das nach dem Rückbau des NCR-Hochhauses im Jahr 2016 verbliebene Untergeschoss mit den Gebäudeanschlüssen und den technischen Einrichtungen.
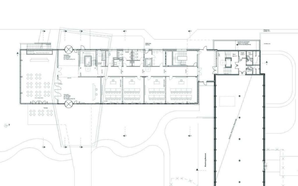
Im Schnittpunkt des dreigeschossigen Sockels und den um annähernd 90 Grad gedrehten 3.- und 4. Obergeschossen ist neben der Erschließung das großzügige Foyer in Form einer geschützten Plaza als zentrale Anlauf- und Ansprechstelle für alle Nutzer und Gäste situiert.
Das Gebäude beherbergt neben den Schulungsräumen einen Multifunktionsbereich, ein zweigeschossiges Audimax sowie mehrere in ihrer Größe flexible „sharing space“ Arbeitsbereiche. Sowohl externen Anbieter von Schulungen, Vorträgen und Veranstaltungen als auch den Nutzern der weiteren Module wird eine vielfältige Palette an Räumlichkeiten und Präsentationsmöglichkeiten zur Verfügung gestellt.
Abgerundet wird das Nutzungsangebot durch die beiden markant auskragenden Büroeinheiten im 3. und 4. Obergeschoss, welche die „Erschließungsachse“ der geplanten weiteren Entwicklung vorwegnehmen.
Das Schulungs- und Conference Center bildet mit seinen Angeboten, der Gebäudeausprägung und der städtebaulichen Vernetzung im wörtlichen Sinne den Nucleus der aktuellen und zukünftigen Entwicklungen des Areals.






