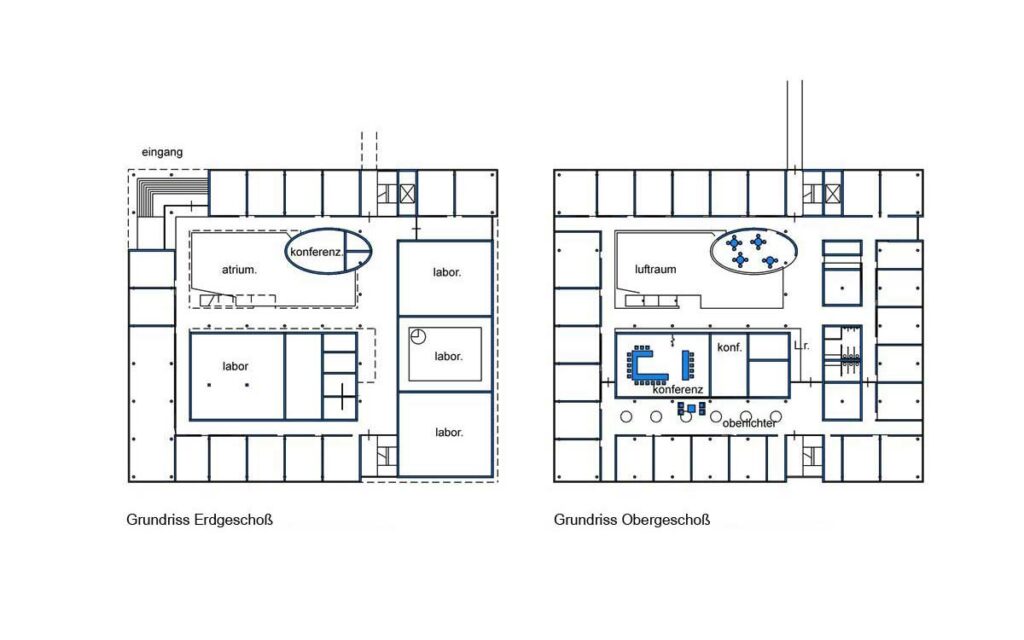
Eine optimale Grundstücksausnutzung, die Anbindung an eine bestehende Produktionshalle und interne Kommunikation als zentrales Thema definieren den Entwurf.Darauf aufbauend entwickelt sich:der „Campus“ als städtebaulichen Ansatz. Lage und Erschließungssystem des Neubaus lassen eine Vielzahl von Optionen für mittelfristige Entwicklungen und mögliche Anbindungen zu ein „Steg“ im 1. OG. Er verbindet die bestehende Produktionshalle mit Verwaltung und Entwicklung, ohne dabei die innere Erschließung einzuschränken. Die „Halle“ als Zentrum des Neubaues, 2-geschoßig mit umlaufender Galerie und mit einem Glasdach überdeckt. Mit Espressobar, Sitzgruppe, einem Aufenthaltsbereich für Mitarbeiter/innen im 1. OG und einem abgeschlossenen Besprechungsraum im EG – intern liebevoll als „Aquarium“ bezeichnet – sind Angebote für zufällige wie verabredete Gespräche und Termine vorhanden. Im Gegensatz zur zurückhaltenden Gestaltung der Fassaden ist der Innenraum bewusst „anders“, mit „tanzenden“ Fenstern der durch die Halle belichteten, angrenzenden Labor- und Konferenzräumen und einer insgesamt „warmen“ Farbigkeit, gestaltet.
Die Ergebnisse einer bereits im Vorfeld erarbeiteten dynamischen Gebäudesimulation mit der Zielsetzung einer energetischen Optimierung waren wichtige, für den Planungsprozess entscheidende, Vorgaben




