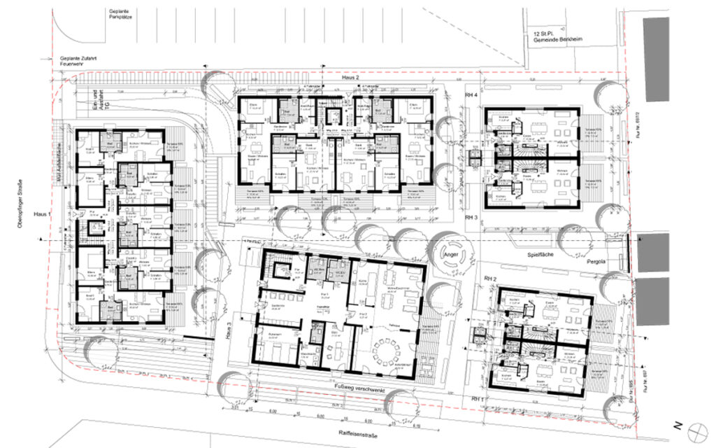
In Sichtweite der neu gestalteten Ortsmitte der Gemeinde Berkheim entsteht auf dem derzeit brachliegenden Gelände der ehemaligen Raiffeisenbank ein neuer Lebensmittelpunkt für Menschen aus mehreren Generationen und Lebenslagen. Angesprochen werden sowohl Senioren wie auch junge Familien wobei sich das Service Angebot nicht lediglich auf die Barrierefreiheit der 27 Wohnungen beschränkt. Passende und individuell zugeschnittene Service- und Betreuungsleistungen werden ebenso angeboten wie weiterführende Hilfestellungen. Das städtebauliche Konzept legt besonderen Wert auf die „Körnigkeit“ der Gebäude, deren Höhenstaffelung und die Einbindung in das umgebende Gefüge. Gleich einem Rückgrat sind die beiden 3-geschossigen Gebäudekörper des „Service-Wohnen“ entlang der nördlichen und östlichen Grundstücksränder positioniert. Als vermittelnde Elemente zu der bestehenden Einfamilienhausstruktur werden die 2- geschossigen Doppelhaushälften im südlichen Bereich der Gesamtanlage gesetzt. Im wahrsten Sinne des Wortes als „Herzstück“ dient das mittig gelegene Gebäude mit Gemeinschaftsbereich für alle Bewohner, einer Sozialstation und einer Tagespflegeeinrichtung für 12 Gäste. Der gesamte autofrei gestaltete Innenbereich des „Service Wohnen, Berkheim“ bietet vielfältigen Raum für Begegnung, Spiel und Kommunikation. Dieser Freiraum wird durch eine Tiefgarage ermöglicht, welche mit den insgesamt fünf Baukörpern verbunden ist.









